calldocumentfacebookmessagemypartnerwindowsapplegoogleplayworkerroutecoinspinterestplaysearchsmartphonetwittercaraccordeonvideoarrowarrowdownloaddownloaduploadsection_scrollerglobemapIcon-Shop-Websitecontactenergyhomebridgeshighrisetunnelmininghousearrow-uparrow-downarrow-leftarrow-leftarrow-circle-rightchevron-right-circleuserexternlinkcartissuuclosekeystarweb

Hilton Hotel Manchester

United Kingdom

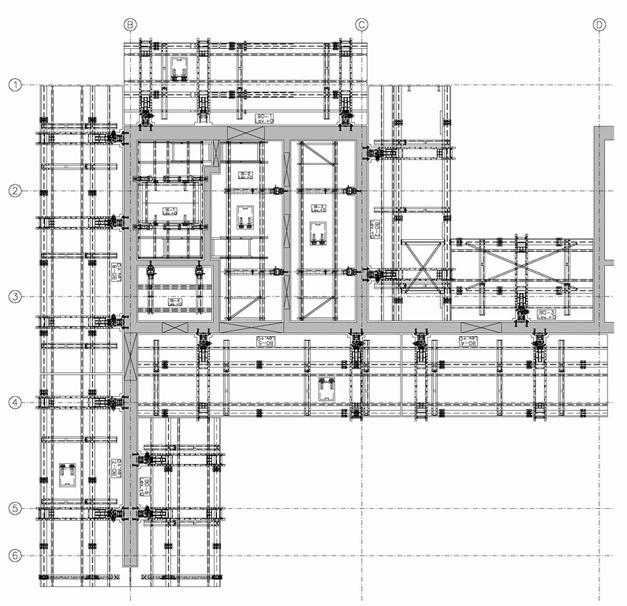
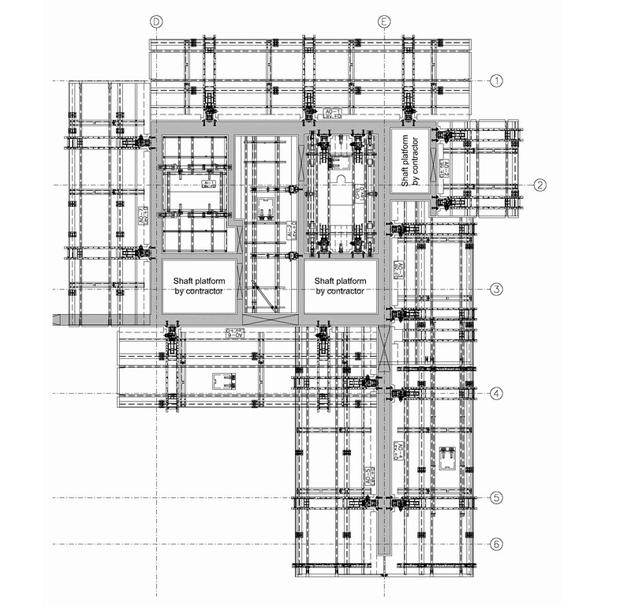
Automatic climbing technology for the UK's tallest building outside London: Time-saving solutions and the very highest safety standards regardless of the weather.

Back

Project data

Year of completion
2006
Project duration
12 Months
Country
United Kingdom
Address
303 Deansgate
Town or city
Manchester
Realization
MPB Construction
Structure
Hotel
Type of structure
High-rises

Shaft / core

Construction method
Core formed/poured in advance
Number of storeys
47
Structure height
160 m
Height of casting sections
3.25 m
Length of concreting section
50 m
Number of casting sections
4

Systems used