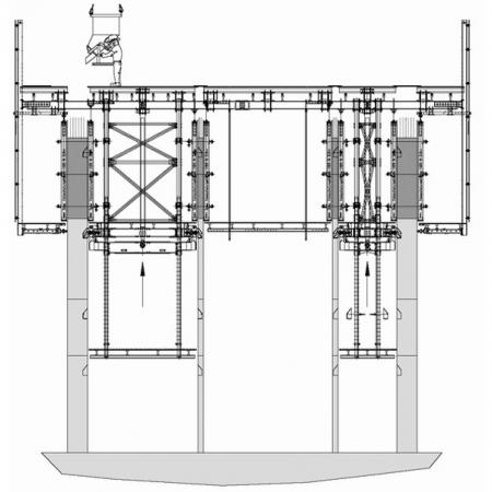
Stockholm's tallest building is a landmark structure in the Kista Science City. The Doka platform SCP was used on this project, enabling the structure core to be constructed extremely quickly, safely and cost-effectively
All listed fields are required. By using our site, necessary cookies are set on your device for the execution of the service. Find out more in our data privacy policy https://www.doka.com/data-privacy.
You can now switch back to the QR code reader to request information on other topics. You have the option to save your contact details to be automatically used for your next request.
We request your consent
1) Use of cookies
We, Doka GmbH, use cookies and third-party applications. This helps us ensure optimum performance of our website, in particular
See our Data Privacy Statement for more information about our cookies.
We also offer you the possibility of selecting your cookies (advanced cookie settings).
2) Data transfer to the United States of America
Some of our partners are entities established in the United States of America. We transfer your personal data manually or via an interface to these partners in the United States of America.
We would like to inform you that the ruling of 16 July 2020 (Court of Justice of the European Union judgement in case C-311/18, “Schrems II”) invalidates the EU - U.S. Privacy Shield decision that permitted a transfer of personal data to the United States of America. In consequence, as a third country the United States of America does not offer an adequate level of data protection.
For you as user, the risk that the transfer of personal data to an entity established in the United States of America is in particular that your data are subject to access by the United States authorities for monitoring and surveillance purposes and that to a large extent you are without effective administrative and judicial right of redress against such action by the United States authorities.
Personal data that we transfer to the United States of America are in particular IP addresses (Internet Protocol addresses).
We co-operate via various applications with the following recipients:
We require your explicit consent to continue sending your personal data to these providers.
You can revoke your consent with effect for the future at any time, by accessing the cookie settings on the website.





